Mechanical Information
Dimensions
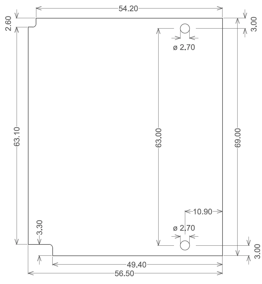
The mechanical dimensions of the MCIO PCIe FMC are illustrated in the figures below. All dimensions are in millimeters (mm).
The assembly drawings are also available as PDF files that you can download at the provided links.

The 3D Model
The 3D model of the board is available as a STEP file at the link below:
Mezzanine fastening hardware
For mechanical fastening of the mezzanine card to the carrier board, the MCIO PCIe FMC comes with 2x hex standoffs. We highly recommend using machine screws on each of these standoffs to fix the mezzanine card to the carrier board.
The hex standoff and machine screw part numbers are listed below:
Hex standoff, Thread M2.5 x 0.45, Brass, Board-to-board length 10mm
Part number: V6516C
Manufacturer: AssmannMachine screw, Thread M2.5 x 0.45, Length (below head) 4mm, Stainless steel, Phillips head
Part number: 90116A105
Supplier: McMaster-Carr